консультация по строительству
+7(978) 833-66-25
Проект № 867
что входит в стоимость
Цена проекта:

Цена строительства дома:

Базовая:

Комфорт:
общая площадь: 119 м2

строительная площадь: 151 м2
3 700 000 ₽
56 000 ₽
5 650 000 ₽
написать в WhatsApp
возможно поэтапное строительство
1 этап 2 этап 3 этап
фундамент коробка отделка
действующие акции
Главная
Проекты
№867
Акции действующие

Акции

1. Стоимость Типового и Индивидуального Проекта в Подарок при Заказе Строительства

Срок действия: постоянно


2. Возможность Быстро Адаптировать Проект под Себя

Срок действия: постоянно
Планировка
goods imageВнести изменения в проект
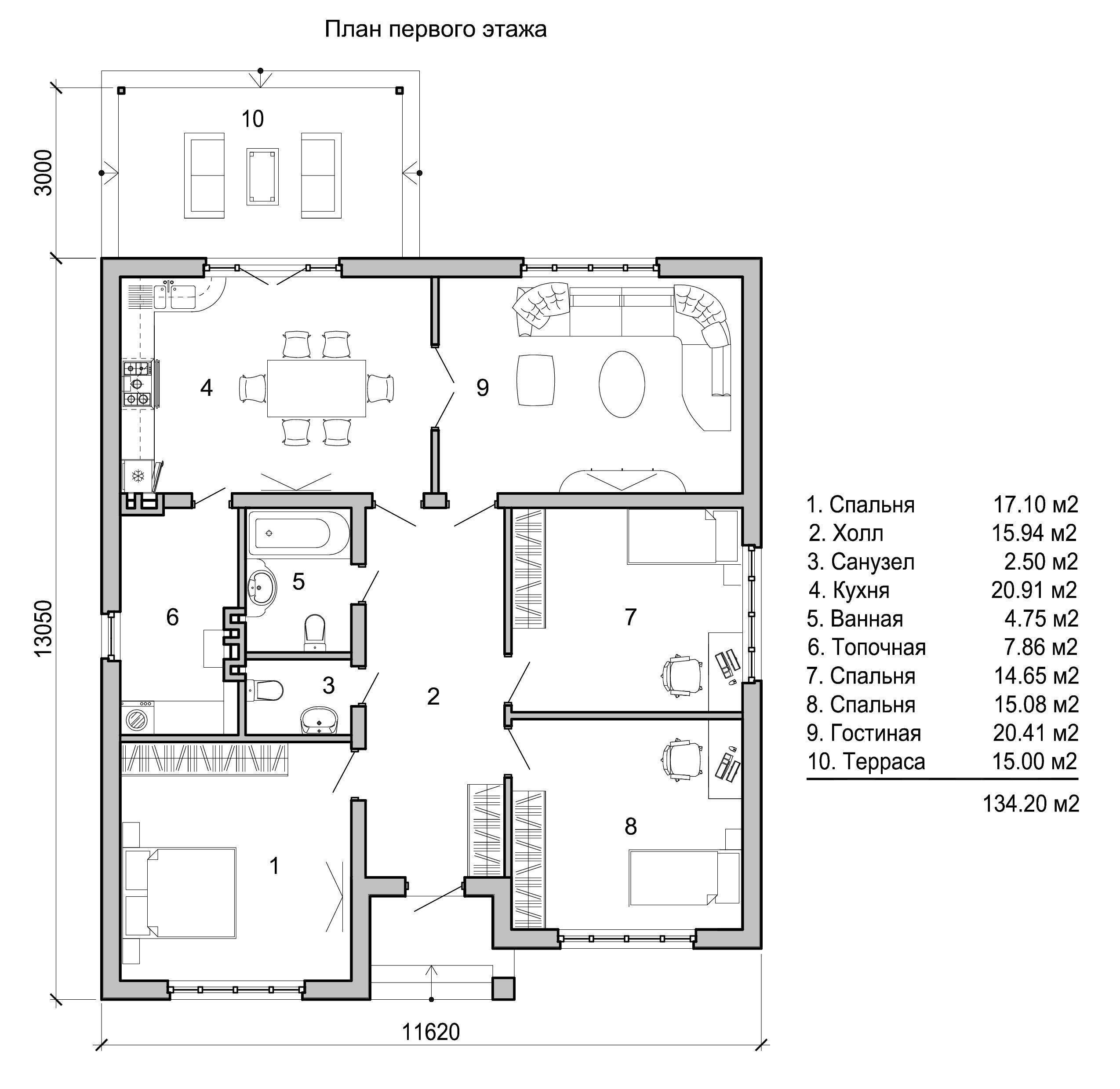
План первого этажа
Вариант-1
Проект возможно изменить под индивидуальные требования Заказчика:

Изменение планировок

Изменение архитектурных решений

Гараж,навес

Терраса

Цокольный этаж

Балкон

Возможны и другие изменения
Оставьте заявку
Наш менеджер свяжется и проконсультирует Вас по любому вопросу строительства и проектирования дома
Оставляя заявку, вы соглашаетесь на обработку персональных данных
×
г. Москва, метро “Китай город”, ул. Яузская, дом 15/11
+7 987 654-32-10info@constructor.ru